时间:2020年3月
地点:梅州客天下文化广场
项目:全网通手机信号覆盖

梅州客天下文化广场位于广东省梅州市梅江区,紧邻客天下旅游产业园,是集合“吃、住、行、游、购、娱”和教育、科研、文化为一体的综合社区。

文化广场的会所位于广场的负2层和负3层,包含了游泳、乒乓球、台球、羽毛球、阅读室等场所,室内各种娱乐设施一应俱全,但是由于地处地下负2层和3层的位置。
三大运营商手机信号均为脱网状态,手机的通话和上网均无功能。


但是在地面广场上,均有良好的三网通话和上网信号覆盖。因此将室外信号放大增强后,做室内分布,可有效的解决和改善地下负2层与负3层没有信号的窘境。
1. 室外信号勘测
在室外地面广场,可以勘测到良好的三网通话和三网4G上网信源。

基于以上优质的信源,可采用5频段全网通设备,作为该文化广场会所的信号增强。
2. 系统设计
2.1产品介绍

设备采用5频段(800+900+1800+2100+2600)大功率全网通设备,涵盖了
中国移动2G+4G(中国移动3G全国已经退网),
中国联通2G+3G+4G,
中国电信 2G+3G+4G的频段信号增强。
中国移动通话+上网:GSM900M + FDD-LTE1800M + TDD-LTE2600M
中国联通通话+上网:WCDMA2100M + FDD-LTE1800M
中国电信通话+上网:CDMA800M + FDD-LTE1800M

设备的频段配置,可以满足全国各种地域的应用,并且兼容海内外各款安卓和苹果手机的制式,频段齐全。
2.2 技术参数

2.3技术优势
(1) 频段齐备,移动4G不单包括了FDD-LTE,也包含了TDD-LTE制式,也就是确保了苹果手机的4G信号效果(全球苹果手机涵盖intel基带芯片和高通基带芯片两个版本,如果厂商只做FDD-LTE的4G信号增强,则对intel基带的苹果手机不支持,导致了这类苹果手机没有4G信号),很多厂商在移动4G的支持这块,为了降低成本,而只做一种4G的信号增强。
(2) 信号增益高,85±2dB。确保了室外信号在一格等微弱的信源应用场景,依然可以保证室内信号的强输出效果。这也就是我公司产品在船舶等场景,依然可以做出优质解决方案的主要原因。
(3) 信号输出功率大,25±2dBm。单台设备可以驱动10-20个室内天线的覆盖应用场景,降低了系统造价和施工难度。
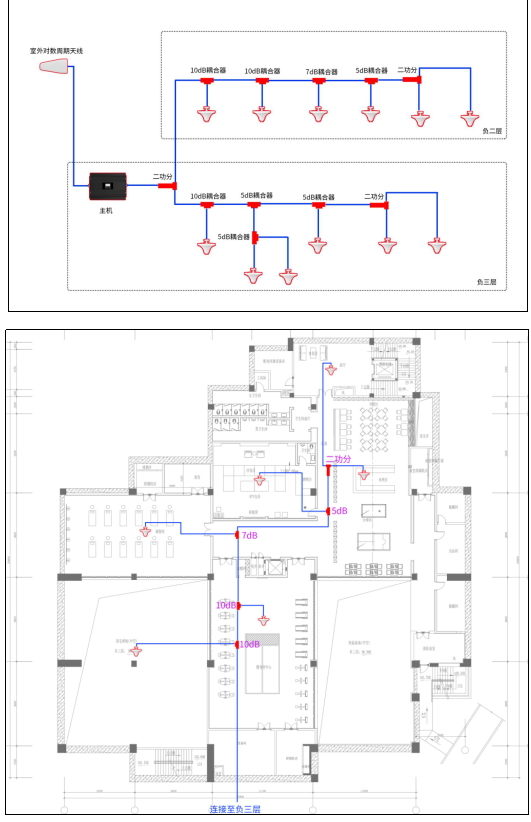
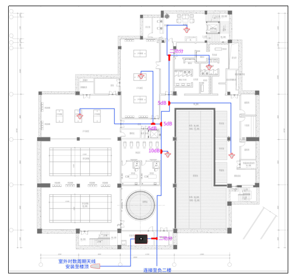
2.4 方案设计


2. 施工安装
由于整个会所现场桥架清晰,并且几乎没有人员在内办公和活动。施工以最快的速度,3天就完成了全部的布线和布点的工程工作。


通过一台全网通主机,加12个天线点位,即可完成了该会所的两层楼,约3000平米的场地覆盖范围需求。
2. 效果验收
施工完成后,设备的5个频段的工作均达到了+25至+27dBm的满功率输出范围值,信号输入和输出非常优质。


在设备满功率输出的状态下,实地勘测两层楼中的各个点位信号,也达到了满格优质的信号强度,通话流畅、视频聊天刷抖音等都毫无卡顿现象。
下表为抽样点位室内信号勘测数据:


2. 项目总结
作为该广场会所,室外信源优质,室内信号完全没有的应用场景,采用一台大功率全网通设备,通过简单的天馈系统室内分布天线后,即可完成手机信号的通话和上网的全部署。方案简单傻瓜,系统不用任何的调试,施工简单周期短。该产品系统和方案,可作为同类型面积和场景的广泛应用方式。
下一组:6层青年旅社公寓全网通覆盖